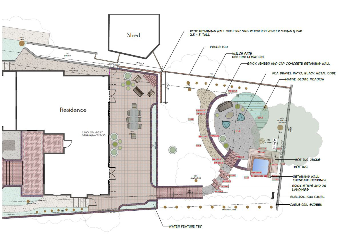
Poor soil on a steeply sloping front yard is regenerated with soil fracturing, compost tea application and erosion control. Birds, bees and butterflies flock to the new edible and bee garden, and tweens and parents enjoy family time together at the new hot tub patio.
2019 CLCA East Bay, Small Design-Build, First Place “Front Hillside Extravaganza”
Back to Top